Author : -관리자- / Date : 2021. 1. 29. 15:15 / Category : MEDIA/세월호 진상규명
1. 무엇이 오보인가?
'증개축으로 인해 세월호의 전체 중량이 187톤 증가되었으며, 그 중에 사진전시실에 설치된 대리석이 37톤이다.', '유병언 회장의 사진전시실을 만들기 위해 세월호의 증개축이 되었으며 이로인해 세월호의 복원성이 악화되었다.' 라는 등 청해진해운의 사진전시실에 대해 감사원, 해양안전심판원에서 사실과 다른 내용을 다음과 같이 기재했다.


출처: 감사원의 감사결과보고서(2014.10) 159쪽

출처: 감사원의 감사결과보고서(2014.10) 150쪽

출처: 해양안전심판원 특별조사부의 여객선 세월호 전복사고 특별조사 보고서(2014.12.29) 17쪽
2. 게재된 내용 VS 사실
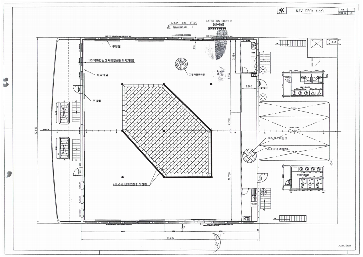
| 증개축으로 인해 세월호의 전체 중량이 187톤 증가되었으며, 그 중 사진전시실에 설치된 대리석이 37톤이다. 전시실 내부 인테리어용 대리석 면적은 358.9㎡이고 카페트 면적은 84㎡이다. 이렇게 사진전시실을 만들기 위해 세월호가 증개축되면서 세월호의 복원성이 나빠졌다. |
| ▼ |
| 세월호의 사진전시실로 공사로 인해 늘어난 총 중량은 약 2톤 정도이며, 사진전시실에서 대리석이 깔린 부분과 카페트가 깔린 부분이 잘못 계산되어 무려 11배 가량이나 과하게 계산이 되었다. 따라서 세월호의 높은 곳에 세월호의 5층 전시실 도면에 따르면, 바닥재는 카페트(자체 계산 면적 320.3㎡)이고, 중앙부에 있는 다이아몬드 형태의 구조물 부분에는 대리석(자체 계산 면적 83.9㎡)이 사용되었음을 확인할 수 있다.(전시실 도면 참고) 그러나 감사원에서는 카페트 면적과 대리석 면적을 혼동하여 넓은 면적에는 대리석이 사용되었고, 중심부 구조물에는 카페트가 사용된 것으로 계산하였다. 뿐만 아니라 1㎡당 대리석의 중량을 60kg으로 계산하여 전시실 인테리어 공사로 인해 총 21.592톤이 누락되었다고 밝혔다. 그러나 사진전시실에 사용된 대리석과 같은 종류의 제품으로 면적을 다시 계산해보면 대리석 중량은 1.735톤(면적 83.9㎡ x 단위중량 20.3kg/㎡면적 83.9㎡ x 단위중량 20.3kg/㎡)이 되어 카페트 중량 0.224톤(면적 320.3㎡ x 단위중량 0.7kg/㎡)과 합하면 사진전시실 공사로 인해 늘어난 총 중량은 1.959톤으로 확인된다. 대리석의 두께에 따라 중량은 달라질 수 있으나 무려 11배 가량 과다하게 계산하였음을 알 수 있다.(전시실에 사용된 같은 종류의 대리석 1㎡당 중량 참고) 만약 대리석이 37톤 사용되었다면 실제 수리 공사를 맡았던 회사 관계자 배 모씨 "대리석이 2톤 가량 사용되었다"라고 증언한 말과도 상충되게 된다. |
실제 공사 완료된 전시실의 모습






OO설계사무소 전시실 도면

OO종합 회사 전시실 수리 공사 내역

사진전시실 도면 참고 면적 자체 계산 결과

타일 무게 참고용 (1) 비앙코 타일(60cm x 60cm x 10.3mm(두께)의 경우 1장당 7.3kg)_계산 시 20.3kg/㎡로 확인됨

타일 무게 참고용 (2) 네로마퀴나 타일(60cm x 60cm x 12mm(두께)의 경우 1장당 9kg)_계산 시 25kg/㎡로 확인됨

세월호 증.개축 부실검사 혐의 검사원 재판(뉴시스, 2014년 11월 25일)

김씨에 이어 증인으로 출석한 (당시)같은 회사 관계자 배모(34)씨는 "5층 전시실 바닥재는 카페트, 벽재는 그림전시가 가능하도록 공사했다. 최초 받은 도면에는 전시실 중앙구조물이 없었다"고 밝혔다. 이어 "중앙구조물에 대한 도면을 받아 지난해 3월께 다이아몬드 형태의 구조물을 설치했다"며 "전시실에는 2t 정도의 대리석을 사용했다"고 말했다.
본 게시글은 지난 2014년 4월 중순부터 2016년 10월 말까지 310여 곳의 언론사들이 보도한
16,000여 건의 오보에 대한 정정 및 반론 보도 중에 해당 부분을 발췌한 글입니다.